felsensteinproject   ARCHITEKTEN

  • INFO

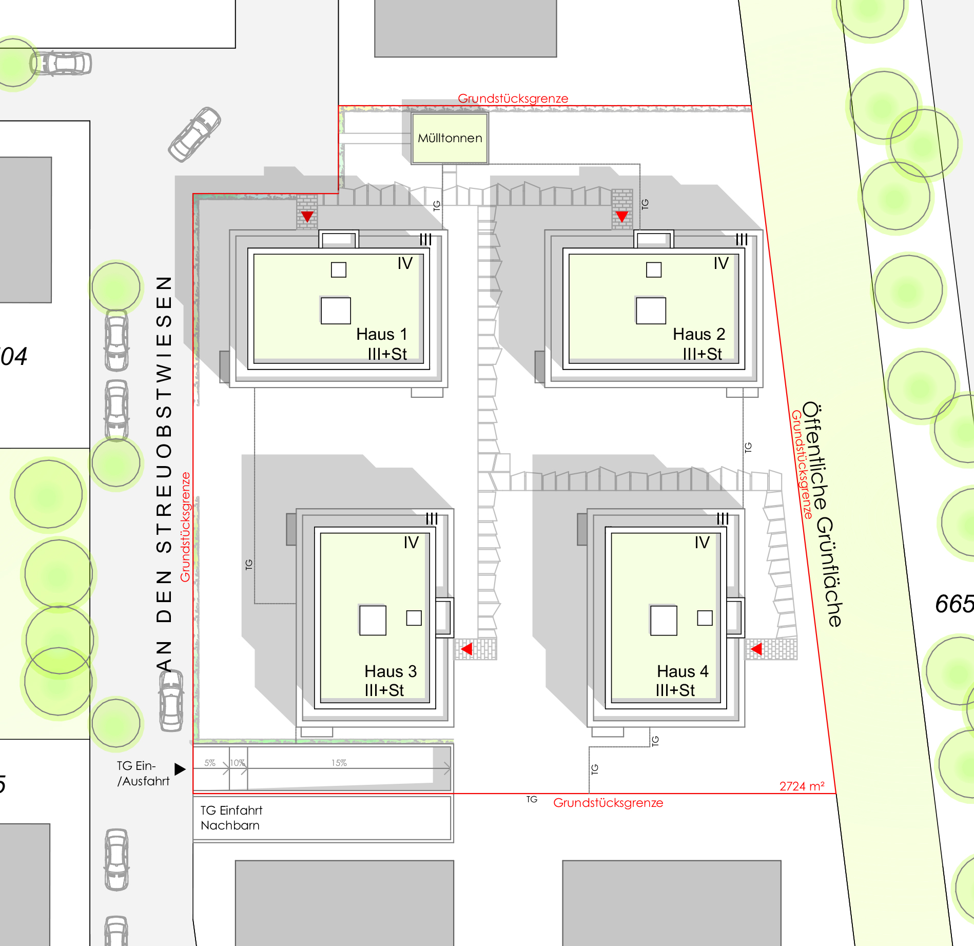
    Projekt:

    Ort:

    Auftraggeber:

    Leistung:          

     

     

    Fertigstellung:

    Wohnbebauung

    Bad Nauheim

    Procom Invest GmbH & Co. KG

    LPH 2-5

    in Kooperation mit:

    pbp architekten partGmbB

    2020

x

 

 

  • INFO

    Projekt:

    Ort:

    Auftraggeber:

    Leistung:

     

     

    Fertigstellung:

    Wohnbebauung

    Bad Nauheim

    Procom Invest GmbH & Co. KG

    LPH 2-5

    in Kooperation mit:

    pbp architekten partGmbB

    2020